Обяви 0 За нас Контакти
Продава 4-СТАЕН
град София, Манастирски ливади
415 000 €
811 669.45 лв.

(2 255 €, 4 410.40 лв./m2)
Цената е с включено ДДС
Коригирана в 11:26 на 13 май, 2026 год.
Обявата е посетена 1055 пъти.
Площ:
184 m2
Етаж:
3-ти от 5
Строителство:
Тухла, Въведен в експлоатация 2025 г.

Описание на имота:


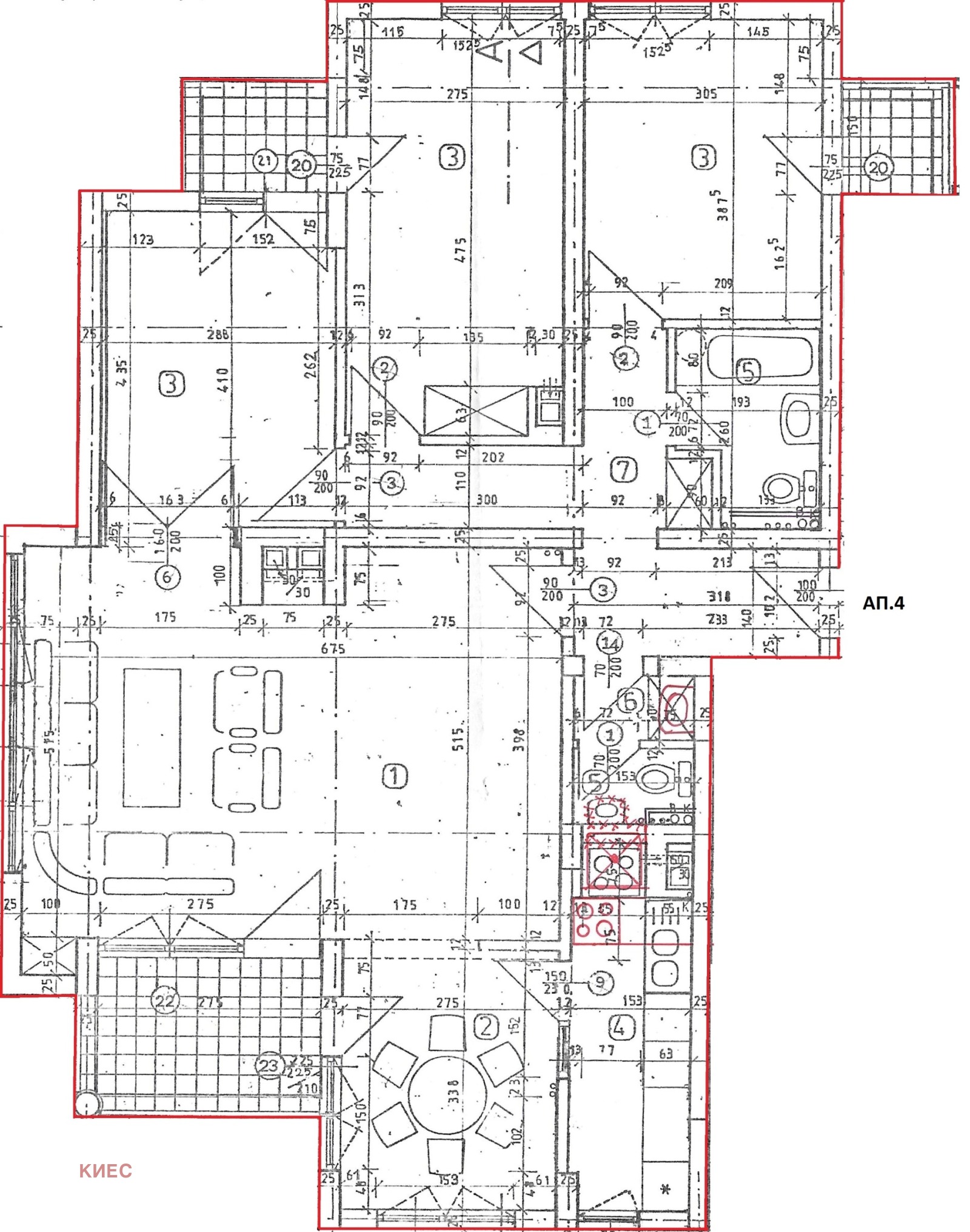
Просторен четиристаен с акт 16. Чиста площ 142 квм, разпределена на: хол 50 квм, отделна кухня с прозорец, която може да се обособи за отделна стая, 3 спални, 2 бани и антре. В цената има и 13 квм мазе/склад. Моля, вижте разпределението на схемата.
БДС стандарт с материали от най-висок клас.
Красива малка сграда с локация на тиха зелена улица, недалеч от бул.Бъкстон и до спирки на транспорт, пазар, супермаркети.
Предлага се и гараж - цена 38000 е.
Особености
Тухла
Асансьор
С гараж
Интернет връзка
За контакт:
0878587960
Агенция:
КИЕС
0878587960
Медал за прослужено време
В imot.bg от 2019 г.
keys.imot.bg
Адрес:
област София, гр. София, ул.Иван Сусанин бл.110
ИЗПРАТИ ЗАПИТВАНЕ
ИЗПРАТИ ЗАПИТВАНЕТО

Продава 4-СТАЕН
град София, Манастирски ливади
Обява: 1d170929831115573

415 000 €
811 669.45 лв.
(2 255 €, 4 410.40 лв./m2)

Цената е с включено ДДС
ЗАПАЗИ ОБЯВАТА

Местоположение: град София, Манастирски ливади

Допълнителни данни за имотите в района и сравнение с други райони

Покажи

Период

и 5 месеца

* Средните цени са определени чрез медианна стойност